Construire Votre Rêve: Plan Maison en Bois pour une Habitation Écologique et Chaleureuse
Plan Maison en Bois: Une Option Écologique et Esthétique
La construction de maisons en bois gagne en popularité en raison de ses nombreux avantages. Les plans de maisons en bois offrent non seulement une esthétique chaleureuse et naturelle, mais aussi une empreinte écologique réduite par rapport aux constructions traditionnelles.
Les maisons en bois sont connues pour leur durabilité, leur isolation thermique et acoustique efficace, ainsi que pour leur faible consommation d’énergie. Les plans de ces maisons peuvent être personnalisés pour répondre aux besoins spécifiques des occupants, offrant ainsi une flexibilité inégalée dans la conception.
En plus d’être respectueuses de l’environnement, les maisons en bois créent un environnement intérieur sain grâce à la régulation naturelle de l’humidité. De plus, le bois utilisé dans la construction provient souvent de sources durables, contribuant ainsi à la préservation des forêts.
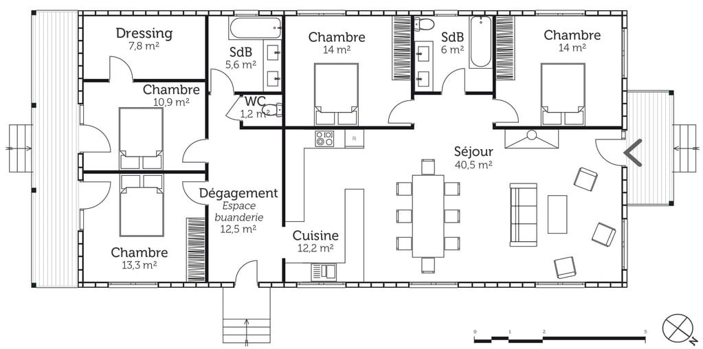
Que vous optiez pour un style moderne ou traditionnel, les plans de maison en bois peuvent être adaptés à tous les goûts et budgets. De la petite cabane au chalet spacieux, les possibilités sont infinies avec ce matériau polyvalent et écologique.
En conclusion, choisir un plan de maison en bois est non seulement un choix esthétique et durable, mais aussi une décision qui investit dans un avenir plus respectueux de l’environnement. Opter pour le bois comme matériau de construction peut transformer votre maison en un havre de paix naturel et confortable.
Les 8 Avantages d’une Maison en Bois : Esthétique, Durabilité et Écologie
- Esthétique chaleureuse et naturelle
- Durabilité et longévité
- Isolation thermique efficace
- Isolation acoustique performante
- Faible consommation d’énergie
- Personnalisable selon les besoins
- Régulation naturelle de l’humidité pour un environnement intérieur sain
- Utilisation de bois provenant de sources durables
Inconvénients de la Construction d’une Maison en Bois : Analyse des Défis Potentiels
- Coût initial potentiellement plus élevé que la construction traditionnelle.
- Entretien régulier nécessaire pour protéger le bois des intempéries et des insectes.
- Sensibilité au feu plus élevée par rapport à d’autres matériaux de construction.
- Limitations en termes de design architectural complexe par rapport à certains autres matériaux.
- Durée de construction souvent plus longue en raison de la nécessité de travailler avec du bois.
- Risque de déformation du bois au fil du temps si l’entretien n’est pas adéquat.
Esthétique chaleureuse et naturelle
Les plans de maison en bois offrent une esthétique chaleureuse et naturelle qui crée une atmosphère accueillante et apaisante. Le bois, par sa texture, sa couleur et son odeur caractéristiques, apporte une touche authentique à l’intérieur de la maison. Cette chaleur naturelle du bois crée un environnement confortable et convivial où il fait bon vivre. En plus d’ajouter du charme et de l’élégance à l’espace, cette esthétique chaleureuse et naturelle des maisons en bois contribue à créer un lien harmonieux avec la nature environnante, offrant ainsi un cadre de vie unique et apaisant.
Durabilité et longévité
La durabilité et la longévité sont des atouts majeurs des plans de maison en bois. En choisissant le bois comme matériau de construction, on opte pour une structure solide et résistante qui peut durer des décennies, voire des siècles avec un entretien approprié. Le bois est naturellement robuste et capable de supporter les intempéries et les variations climatiques, offrant ainsi une assurance de stabilité et de pérennité pour la maison. Cette durabilité intrinsèque du bois en fait un choix judicieux pour ceux qui recherchent une construction fiable et durable dans le temps.
Isolation thermique efficace
L’un des avantages majeurs des plans de maison en bois est leur isolation thermique efficace. Grâce aux propriétés naturelles du bois, ces maisons offrent une excellente régulation de la température intérieure, maintenant la chaleur en hiver et la fraîcheur en été. Cette isolation thermique permet non seulement de réduire les besoins en chauffage et en climatisation, mais aussi d’assurer un confort optimal pour les occupants tout au long de l’année. Opter pour un plan de maison en bois garantit donc une atmosphère intérieure agréable et économe en énergie.
Isolation acoustique performante
Les plans de maison en bois offrent l’avantage d’une isolation acoustique performante. Grâce à la densité naturelle du bois et à sa capacité à absorber les vibrations sonores, les maisons en bois permettent de créer un environnement intérieur calme et paisible. Cette isolation acoustique efficace garantit aux occupants une meilleure qualité de vie en réduisant les bruits extérieurs indésirables et en créant une atmosphère tranquille et confortable à l’intérieur de la maison.
Faible consommation d’énergie
Les plans de maison en bois offrent l’avantage d’une faible consommation d’énergie grâce aux propriétés naturelles isolantes du bois. En effet, le bois est un excellent isolant thermique qui permet de maintenir une température intérieure confortable tout au long de l’année, réduisant ainsi la dépendance aux systèmes de chauffage et de climatisation. Cette caractéristique contribue non seulement à des économies d’énergie significatives, mais aussi à une empreinte environnementale réduite, faisant des maisons en bois une option écologique et durable pour les constructeurs et les occupants.
Personnalisable selon les besoins
Un avantage majeur des plans de maison en bois est leur personnalisation selon les besoins spécifiques des occupants. En effet, la flexibilité offerte par la construction en bois permet d’adapter la conception de la maison en fonction des préférences et des exigences de chaque individu. Que ce soit pour ajouter des pièces supplémentaires, modifier l’agencement intérieur ou créer des espaces uniques, les plans de maison en bois offrent une liberté créative inégalée pour créer un espace de vie parfaitement adapté à chaque famille.
Régulation naturelle de l’humidité pour un environnement intérieur sain
La régulation naturelle de l’humidité est l’un des avantages les plus remarquables des plans de maison en bois. Grâce à sa capacité à absorber et à libérer l’humidité de manière naturelle, le bois crée un environnement intérieur sain et équilibré. Cette caractéristique contribue à prévenir la formation de moisissures et d’allergènes, offrant ainsi aux occupants une atmosphère plus confortable et propice à la santé. En optant pour une maison en bois, vous investissez dans un cadre de vie où le bien-être et la qualité de l’air sont au cœur des préoccupations, pour un confort optimal au quotidien.
Utilisation de bois provenant de sources durables
L’un des avantages majeurs des plans de maison en bois est l’utilisation de bois provenant de sources durables. En optant pour ce matériau de construction, non seulement on bénéficie de la chaleur et de l’esthétique naturelle du bois, mais on contribue également à la préservation des forêts en favorisant une gestion responsable des ressources forestières. Cette approche durable garantit que le bois utilisé dans la construction des maisons provient de forêts gérées de manière écologique, assurant ainsi une empreinte environnementale réduite et un impact positif sur la biodiversité forestière.
Coût initial potentiellement plus élevé que la construction traditionnelle.
Un inconvénient des plans de maison en bois est que le coût initial peut être potentiellement plus élevé que celui d’une construction traditionnelle. En raison du prix des matériaux et de la main-d’œuvre spécialisée nécessaire pour la construction en bois, les projets de maisons en bois peuvent nécessiter un investissement financier plus important au départ. Cependant, il est important de considérer ce coût initial dans une perspective à long terme, car les économies réalisées sur les coûts énergétiques et d’entretien peuvent compenser cet investissement initial plus élevé sur la durée de vie de la maison.
Entretien régulier nécessaire pour protéger le bois des intempéries et des insectes.
Un inconvénient des plans de maison en bois est l’entretien régulier requis pour protéger le bois des intempéries et des insectes. En effet, pour assurer la durabilité et la résistance du matériau, il est essentiel de traiter le bois régulièrement avec des produits spécifiques pour prévenir les dommages causés par l’humidité, les UV et les parasites. Cela peut nécessiter un investissement de temps et d’argent supplémentaire pour maintenir la beauté naturelle du bois et assurer sa longévité dans le temps.
Sensibilité au feu plus élevée par rapport à d’autres matériaux de construction.
La sensibilité au feu plus élevée des maisons en bois par rapport à d’autres matériaux de construction constitue un inconvénient important à prendre en compte. Bien que le bois puisse être traité pour améliorer sa résistance au feu, il reste intrinsèquement plus inflammable que des matériaux tels que le béton ou l’acier. Cela nécessite une attention particulière dans la conception et la mise en œuvre de mesures de sécurité incendie pour garantir la protection des occupants et la durabilité de la structure en cas d’incendie.
Limitations en termes de design architectural complexe par rapport à certains autres matériaux.
Les plans de maison en bois peuvent présenter des limitations en termes de design architectural complexe par rapport à certains autres matériaux. En raison des caractéristiques structurelles du bois, certaines formes architecturales audacieuses ou complexes peuvent être plus difficiles à réaliser, ce qui peut restreindre la créativité des architectes et des concepteurs. Cependant, malgré ces contraintes, les maisons en bois offrent toujours un charme naturel et une ambiance chaleureuse qui compensent souvent ces limitations en termes de design.
Durée de construction souvent plus longue en raison de la nécessité de travailler avec du bois.
La durée de construction d’une maison en bois est souvent plus longue en raison de la nécessité de travailler avec ce matériau spécifique. Le bois nécessite des techniques de construction particulières et des compétences spécifiques, ce qui peut entraîner un processus de construction plus complexe et chronophage. De plus, le bois doit être traité et préparé avec soin pour assurer sa durabilité et sa résistance aux éléments, ce qui peut allonger le temps nécessaire pour achever le projet. Malgré cette contrainte, les avantages écologiques et esthétiques des maisons en bois continuent d’attirer de nombreux constructeurs et propriétaires soucieux de l’environnement.
Risque de déformation du bois au fil du temps si l’entretien n’est pas adéquat.
Un inconvénient à prendre en compte lors de la construction d’une maison en bois est le risque de déformation du matériau au fil du temps si un entretien adéquat n’est pas assuré. Le bois est un matériau naturel qui réagit aux variations de température, d’humidité et d’autres facteurs environnementaux. Sans un entretien régulier tel que la protection contre l’humidité, les insectes et les champignons, le bois peut se déformer, se fissurer ou pourrir, compromettant ainsi la structure et l’apparence de la maison. Il est donc essentiel de veiller à un entretien approprié pour préserver la beauté et l’intégrité des maisons en bois sur le long terme.
